Description

In the heart of the historic center of the small Salento village of Cannole, the Casapulia agency offers a typical courtyard house solution to be restored, arranged over two levels with independent entrances.
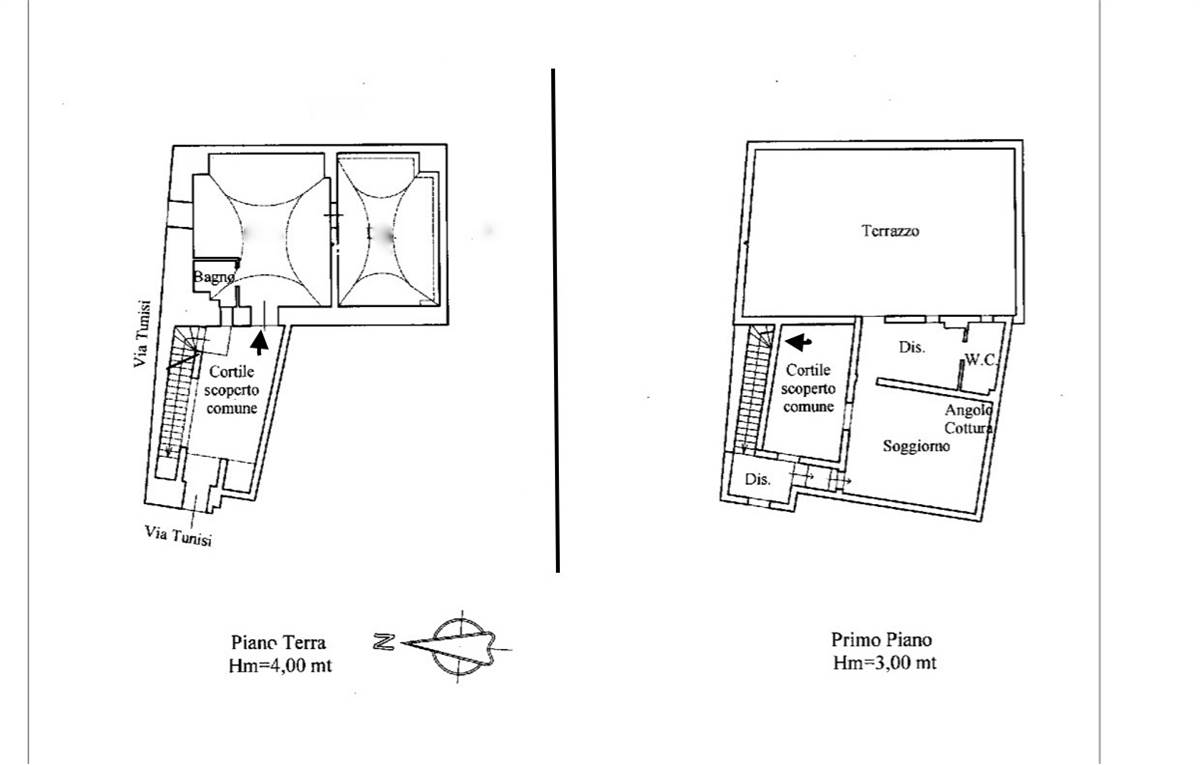
Ground floor: two vaulted rooms and bathroom;
first floor: independent staircase, two flat vaulted rooms, bathroom and level terrace overlooking the old centre.
50 meters away, the property includes a garage space of 27 m2.
It is possible to create 2 independent units (2 two-room apartments) to be used as holiday homes.
Cannole is a small village of 1600 inhabitants, where you can still breathe the air of authentic Salento. It is in a strategic position 9 km from Otranto, 3 km from the protected oasis of the Alimini lakes with its splendid beaches and a few km from the centers of Martano, Maglie and Lecce.


Primal Features

Property Conditions
To Be Renovated
Position
Inner City
View
Statue View
Free Sides
3

Map

via tunisi , Cannole (LE)

Video

Information request

Send
Cookie preference